Statistiche web Villa / Casa Indipendente/Semi Indipendente in vendita a Albenga - Rif.FoFo

Albenga, 2,5 Km. posta in residenza esclusiva, con piscine, Spa, villetta.

Nr locali 5Metri quadrati 140Prezzo 367.500,00 €Villetta, giardino, cantina, palestra, piscina, Spa, solarium.Scarica la versione PDF

Albenga, 2,5 Km. posto in residenza esclusiva, con piscine, Spa, villetta con giardino.

Albenga- A soli 2,5 Km. dal mare e a pochi minuti dalle plendide spiagge di Alassio, nasce una Residenza Esclusiva immersa nella tranquillità, ma vicina a tutti i comfort della Riviera Ligure.

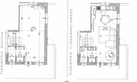
In questo contesto di alto livello, proponiamo villetta su due livelli con giardino privato, cosi composta:

Piano terra: Ampia zona Living con angolo cottura a vista, anti bagno, bagno finestrato.

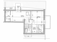
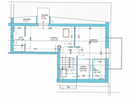
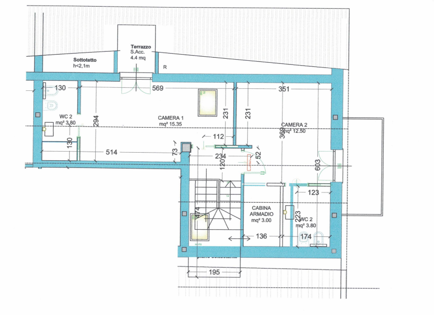
Piano Primo: Due ampie camere luminose, tutte e due con bagno privato, cabina armadio, piccolo sottotetto, terrazzo.

Ideale come casa vacanza o investimento sicuro. Gli appartamenti saranno realizzati con finiture di pregio, completamente personalizzabili grazie alla consulenza di un interior designer a disposizione per accompagnarti nella creazione della casa perfetta.

La residenza offre servizi di prima classe: due piscine (una con idromassaggio), un ampio solarium, palestra attrezzata e area bar-ristorante Spa, per vivere ogni giorno come in un resort di lusso.

 Promozione: Una comoda cantina, inclusa nel prezzo. Disponibili, su richiesta, posti auto e box.

Tutti gli appartamenti saranno in Classe energetica B, dotati di infissi a taglio termico, riscaldamento autonomo con climatizzazione, per garantire il massimo comfort in ogni stagione.

Prezzo  Euro 367.500,00

Consegna chiavi in mano entro fine 2026

  • Prezzo 367.500,00 €

Dettagli

  • TipologiaVilla / Casa Indipendente/Semi Indipendente
  • Data annuncio29/07/25
  • Stato immobileNuovo
  • PianoSu Livelli
  • Tipo di cucinaAngolo cottura
  • GiardinoPrivato
  • RiscaldamentoAutonomo
  • ArrediNessuno
  • Panoramaaperta
  • Classe energeticaB
  • Posti autoPossibilità Posto Auto
  • Metri quadrati 140
  • Nr locali 5
  • Nr. camere 2
  • Nr. bagni 3
  • Nr. ripostigli 0
  • Nr. balconi 0
  • Nr. terrazzi 1
  • Ascensore No
Città Albenga